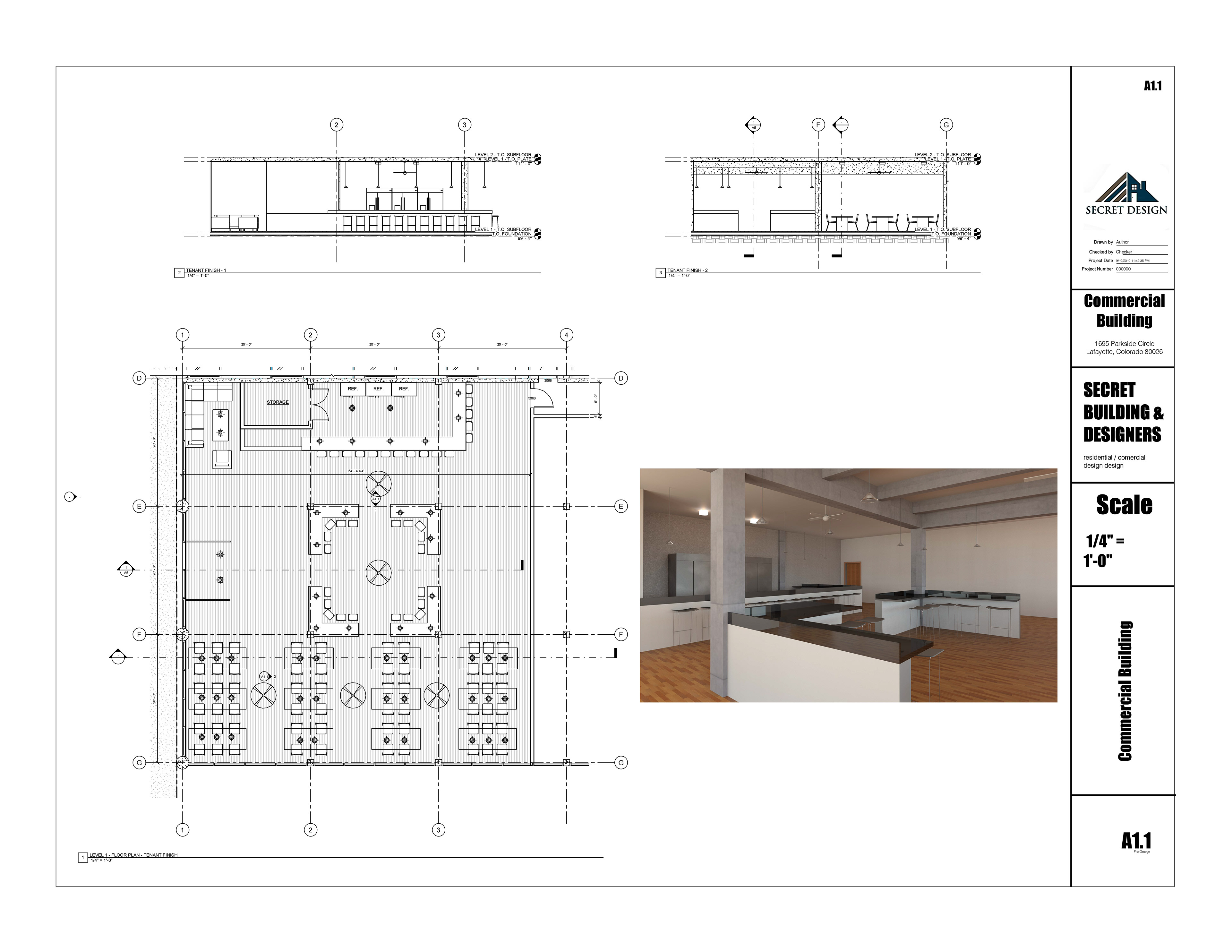
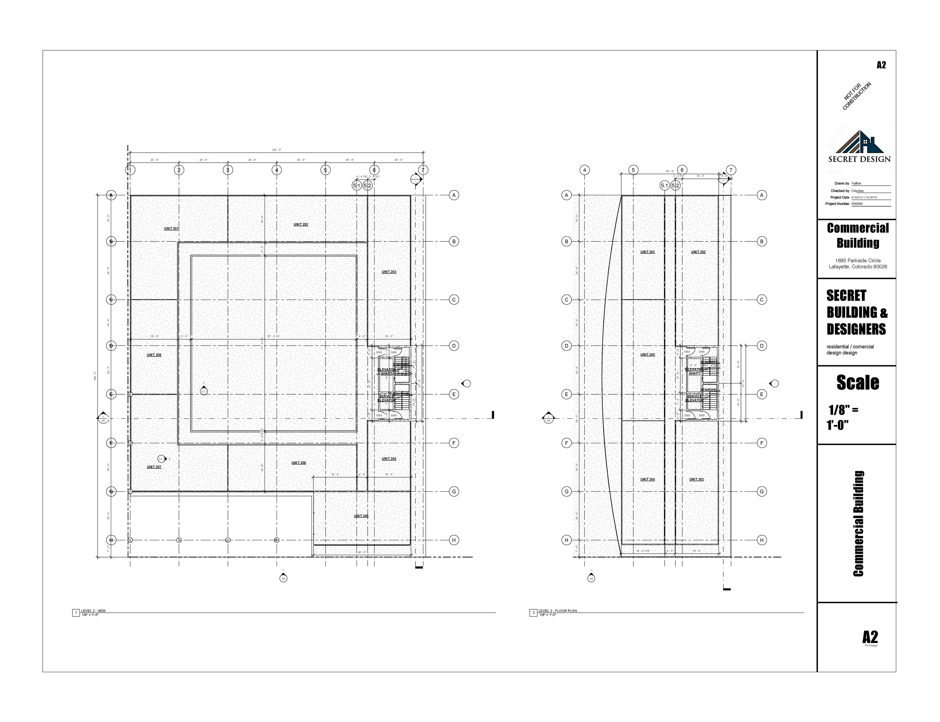
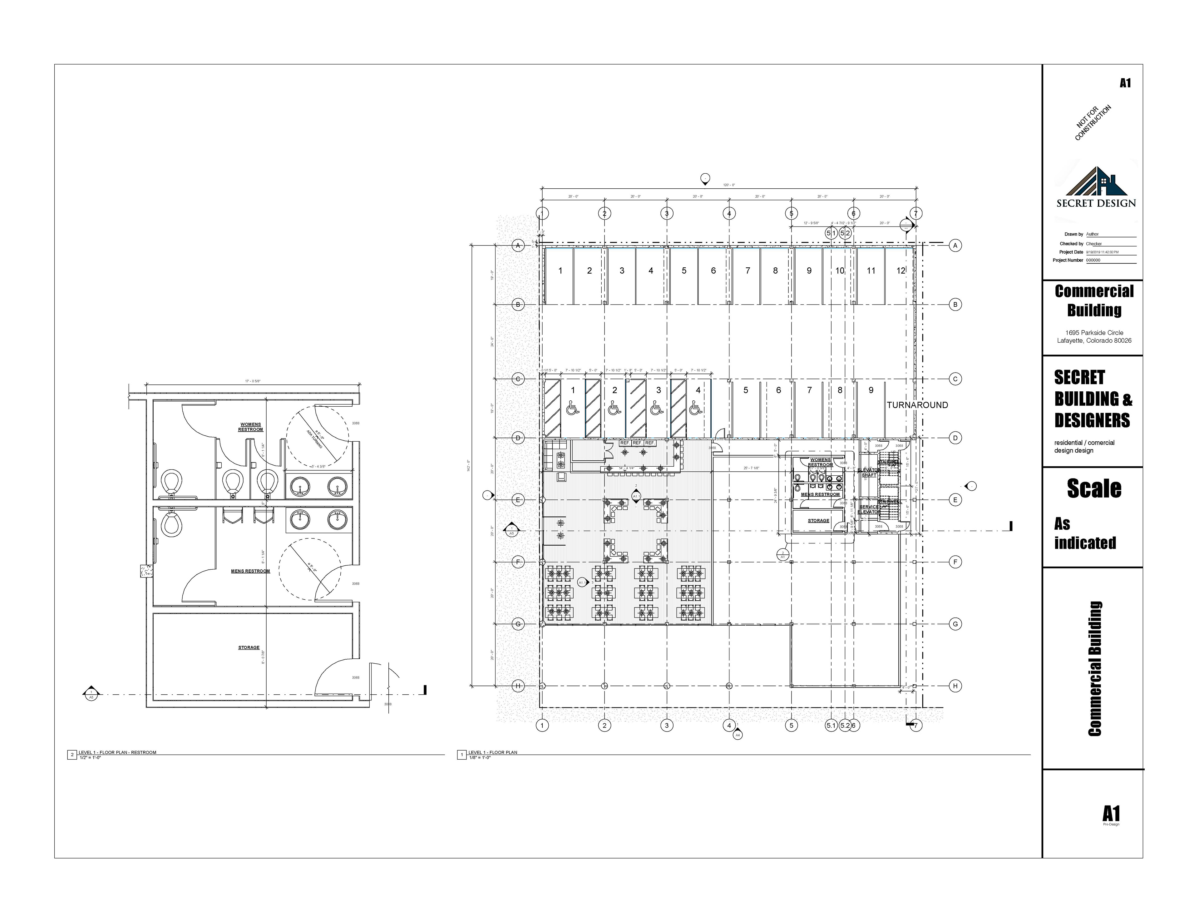
Commercial building
Back